양평역 영등포 자이 디그니티 청약 분양가 중도금 대출은?

영등포 자이 디그니티, 2000년대 이후 양평동에서 첫 공급하는 대단지 아파트로 많은 관심을 받고 있습니다. 양평 제12 구역 재개발 아파트, 5호선 양평역 초역세권에 위치하였습니다. 교통, 교육, 생활인프라 등 장점이 많은 입지 환경입니다. 가장 중요한 분양가는 최근 분양 시장의 분위기를 감안하여 절묘하게 결정을 한 듯합니다. 그럼 영등포 자이 디그니티 청약 분양가 중도금 대출 분양 일정 등 관련 내용을 살펴보겠습니다.
이 달의 주요 청약 단지
영등포 자이 디그니티 입지환경

| 위치 | 서울특별시 영등포구 양평동 1가 265-1,일대 (양평 제12구역 재개발) |
| 규모 | 최고 35층 4개동 707세대 |
| 공급 | 일반분양 185세대 |
| 교통 | 5호선 양평역 초역세권 2호선 영등포구청역 도보권 |
| 학군 | 초등학교,중학교,고등학교 인접 |
| 환경 | 도보권 대형마트, 편리한 생활 인프라 |
| 시설 | 1층 상업시설 예정 |
서울특별시 영등포구 양평동 1가 265-1 일대 양평 제12 구역 재개발단지 최고 35층 4개 동 707세대 ' 영등포역 자이 디그니티 ' 185세대를 일반분양 합니다. 입지가 매우 좋아서 큰 관심을 받고 있습니다. 5호선 양평역 초역세권, 2호선 영등포역 도보권이며, 목동, 당산, 여의도, 강남 등으로 이어지는 버스도 매우 많습니다. 편리한 교통환경으로 인하여 여의도, 마곡, 영등포, 강남 등 주요 일자리 지역으로 빠르게 이동을 할 수 있습니다. 학군도 좋습니다. 초중고교 모두 500m 이내에 있습니다. 목동 학원가 밀집 한 ' 오목교역 ' 약 1km 거리에 있습니다. 셔틀버스 등을 통해서 목동 학원가를 이용하기에 불편함이 없습니다. 가까운 거리에 롯데마트, 코스트코 있고 기타 풍부한 생활인프라를 누릴 수 있습니다. 단점은 노후 주거 환경인데, 양평 13 구역, 14 구역 재개발이 진행이 되고 있는 만큼 일대가 많이 개선이 될 듯합니다. 매우 좋은 입지의 ' 영등포역 자이 디그니티 '입니다.
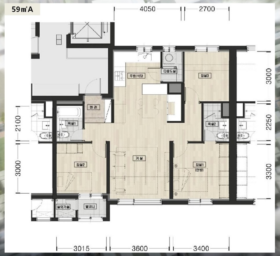
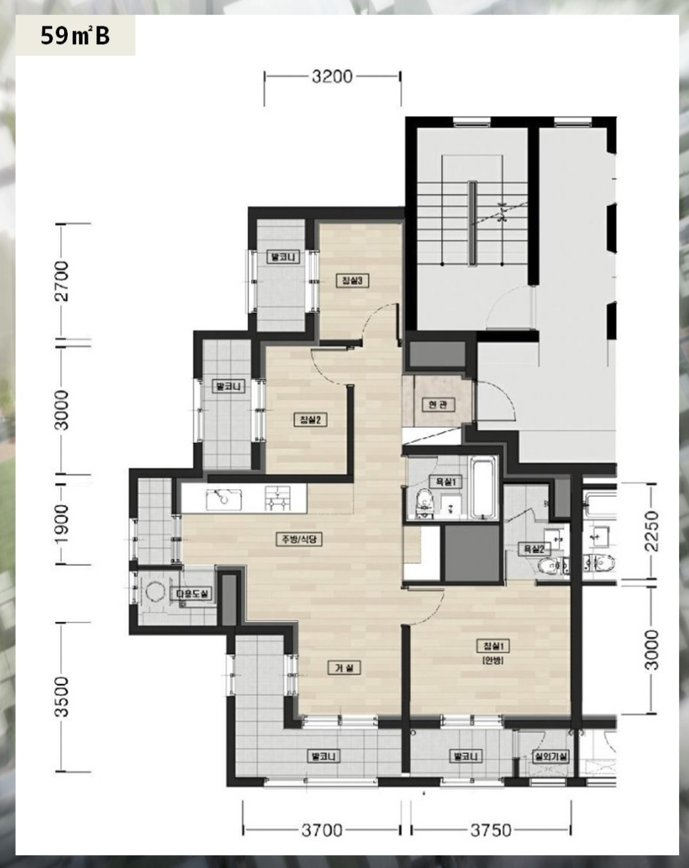
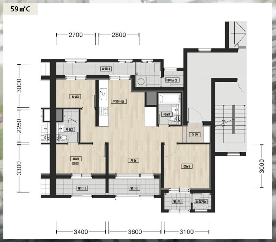
영등포 자이 디그니티 평면도






59,84 타입 모두 A, C는 3 베이 판상형 구조, B는 2 베이 타워형 구조입니다. A와 C의 선호도가 높을 듯합니다. 다만, 최근 분양단지들은 4 베이 판상형 구조도 많은 것을 감안하면, 구조는 다소 아쉬움이 있습니다.
→ 영등포 자이 디그니티 평면도 확인!(xi.co.kr)
꼭 관심을 가져보자!
영등포 자이 디그니티 분양가

| 타입 | 분양가 |
| 59A 34세대 | 8.69억 |
| 59B 40세대 | 8.58억 |
| 59C 9세대 | 8.69억 |
| 84A 32세대 | 11.79억 |
| 84B 35세대 | 11.66억 |
| 84C 35세대 | 11.79억 |
| 영등포중흥S클래스 | 84m2 22년 3월 실거래 13억 84m2 호가 12.2억 + @ |
59 타입 최고 8.69억 , 84 타입 최고 11.79억 원입니다. 확장비는 59 타입은 약 2,000만 원 84 타입은 약 2700만 원입니다. 다만 옵션을 많이 세분화한 점은 마음에 들지 않습니다. 옵션도 꼭 체크를 하시길 바랍니다. 영등포 자이디그니티 가까이 21년 준공 308세대 영등포중흥 S클래스 있습니다. 22년 3월 13억 원에 실거래가 되었습니다. 현재 호가는 12.2억 원입니다. 비교 단지보다 입지와 세대수 그리고 브랜드가 우위에 있습니다. 청약자입장에서는 비싸게 느껴지지만, 시세 수준으로 완판에는 문제가 없어 보이는 가격입니다.
영등포 자이 디그니티 중도금대출
| 84타입 분양가 | 약 12억 |
| 계약금 10% | 1억 2천 |
| 중도금 60% | 이자후불제 |
| 잔금 30% | 입주 시 납부 |
| 당첨이 된다면? | 입주 까지 계약금만 있으면 된다 |
| 입주 시에는? | 전세가능 |
| LTV 70% 13억 | 9억원은 대출, 약 3억원 이상의 현금이 필요함 |
계약금 10%, 중도금 60% , 잔금 30%으로 진행을 합니다. 중도금 60%는 시행사 알선, 이자후불제 조건으로 진행을 합니다. 당첨이 된다면 계약금 10%만으로 추가 납부 없이 입주까지 끌고 갈 수 있습니다. 입주 시에는 감평가 13억 원 기준 최대 9억 원 정도까지 대출이 가능합니다. 단, 9억 원 대출을 위해서는 4.5% 금리 기준 약 9천만 원 이상의 소득증빙이 필요합니다.
영등포 자이 디그니티 1순위 청약 조건

| 1순위 | 서울특별시 및 수도권 거주 |
| 세대주,세대원 모두 가능 | |
| 다주택자 가능 | |
| 청약통장 가입 후 12개월 이상, 예치기준금액 납입 | |
| 1순위 내 경쟁 시 | 서울시 1년 이상 계속 거주자 우선공급 |
| 예치금 | 서울 300만원 |
| 인천 250만원 | |
| 경기 200만원 |
서울의 대부분의 지역이 비규제지역입니다. 이제는 세대주, 세대원 모두 가능하고 다주택자도 1순위 신청을 할 수 있습니다. 서울특별시 및 수도권에 거주하고 청약통장 12개월 이상 예치기준금액을 납입하였다면 1순위 청약 신청을 할 수 있습니다.
단, 1순위 내 경쟁 발생 시 서울시 1년 이상 계속 거주자에게 우선권이 있습니다.
영등포 자이 디그니티 분양 일정

| 모집공고일 | 2월 23일 |
| 특별공급 | 3월 6일 |
| 일반공급 1순위 | 3월 7일 |
| 당첨자 발표일 | 3월 14일 |
| 계약일 | 3월 28일~30일 |
| 입주 예정월 | 26년 3월 |
모집공고문은 2월 23일에 올라왔습니다. 특별공급 신청일 3월 6일, 일반공급 1순위 신청일 3월 7일 , 2순위 신청일은 3월 8일입니다.
→ 영등포 자이 디그니티 모델하우스!(xi.co.kr)
영등포 자이 디그니티 모델하우스

영등포자이 디그니티 모델하우스 현장은 서울특별시 영등포구 양평동 1가 251에 위치해 있습니다. 사이버 모델하우스에서 관련 정보를 확인하시길 바랍니다.
→ 영등포 자이 디그니티 모델하우스!(xi.co.kr)
영등포 자이 디그니티 청약할까?
| 지구 | 비규제지역 분양가상한제 미적용 |
| 재당첨제한 | 없음 |
| 전매제한 | 소유권이전등기일까지 (다만, 1년으로 완화 예정) |
| 거주의무 | 없음 |
| 당첨자 선정 | 60% 추첨, 40% 가점 |
| 최종의견 | S급은 아니지만, A급 입지 |
| 교통,학교,인프라 모두 좋다 | |
| 주변 노후화 정비가 필요해 보인다 | |
| 인접 단지 재개발 호재 | |
| 분양가 저렴하지는 않지만, 완판에는 문제 없다 |
비규제지역 분양가상한제 미적용 단지입니다. 전매제한은 3월 시행령 개정 이후 1년으로 완화 예정입니다. 거주의무는 없습니다. 당첨자는 60%는 추첨, 40% 가점으로 선정을 합니다. 저가점자, 1 주택자에게는 좋은 기회가 될 수 있습니다. S급이지는 아니지만, A급 이상으로 볼 수 있습니다. 교통이 매우 좋고, 교육 인프라 모두 부족함이 없습니다. 주변 노후화는 인접 단지 재개발로 개선을 기대할 수 있어 보입니다. 가장 중요한 분양가는 절대 저렴하지 하지 않습니다. 안전마진은 없는 시세 수준으로 보입니다. 다만, 최근 선착순 계약을 통해서 좋은 결과가 있었던 ' 광명철산자이, 장위자이 '처럼 완판에는 문제가 없어 보이는 분양가입니다. 그래도 부동산 시장 분위기가 아직 회복을 하지 못했습니다. 청약은 신중하게 결정을 하길 바랍니다.
→ 영등포 자이 디그니티 모델하우스!(xi.co.kr)
그 밖의 정부지원 정책을 확인하자
채무통합대환대출 정부지원 받고 저금리로 전환!
채무통합대환대출 정부지원 받고 저금리로 전환! 채무통합대환대출 신청 방법, 조건, 금리 등 정부지원을 받을 수 있는 방법을 찾아보겠습니다. 금융권에 종사하고 있는 만큼, 최대한 정확
sam3sam4.shelikescoffee.com
국민건강보험 환급금 조회 및 신청 방법!
국민건강보험 환급금 조회 및 신청 방법! 작년 병원비를 국민건강보험 환급해 드립니다. [본인부담상한제]를 꼭 체크해주세요. 개인별 진료비 상한액을 초과하였다면 공단에서 환급을 해
sam3sam4.shelikescoffee.com
숨은 돈 계좌 휴면 보험금 찾기, 한번에 조회!
숨은 돈 계좌 보험금 찾기, 한번에 조회! 내 계좌에서 잠자고 있는 숨은 금융자산은 얼마가 될까요? 2022년 3월 기준 무려 16조 원이 숨어있다고 합니다. 여러분의 자산은 얼마가 포함이 되어있
sam3sam4.shelikescoffee.com
2022년 정부지원 서민 금융지원, 생활안정자금 대출 지원사업 안내!
2022년 정부지원 서민 금융지원, 프리랜서 생활안정자금 대출 안내! 코로나19 장기화 그리고 강력한 사회적 거리두기 조치로 인하여 소상공인, 특고(특수형태 근로종사자), 서민 등 다양한 계층의
sam3sam4.shelikescoffee.com
특례보금자리론 주택담보대출 대환대출 신청 방법은?
특례보금자리론 주택담보 대환대출 신청 방법은? 특례보금자리론, 고금리로 인하여 생계부담이 큰 서민 실소유자를 위해서 최대 5억원까지 대환대출을 할 수 있습니다. 보금자리론, 안심전환대
sam3sam4.shelikescoffee.com
소상공인 희망대출플러스 특례보증 확대, 신청 방법은?
소상공인 희망대출플러스 특례보증 확대, 신청 방법은? 정부에서 소상공인 지원 [희망대출플러스 특례보증] 확대를 발표하였습니다. 한도는 상향, 지원 대상은 확대하였습니다. 지원규모는 약 9
sam3sam4.shelikescoffee.com
이상 양평역 영등포 자이 디그니티 청약 분양가 중도금 대출 포스팅 끝.
댓글